Réf. : 028/1603
Dernière mise à jour de l’annonce : 04/12/2025
264 656 €
(Honoraires de négociation inclus)
251 415 €
(Prix net vendeur)
Montant des honoraires : 13 241 €
Pourcentage des honoraires : 5 %
Honoraires à la charge de l'acquéreur
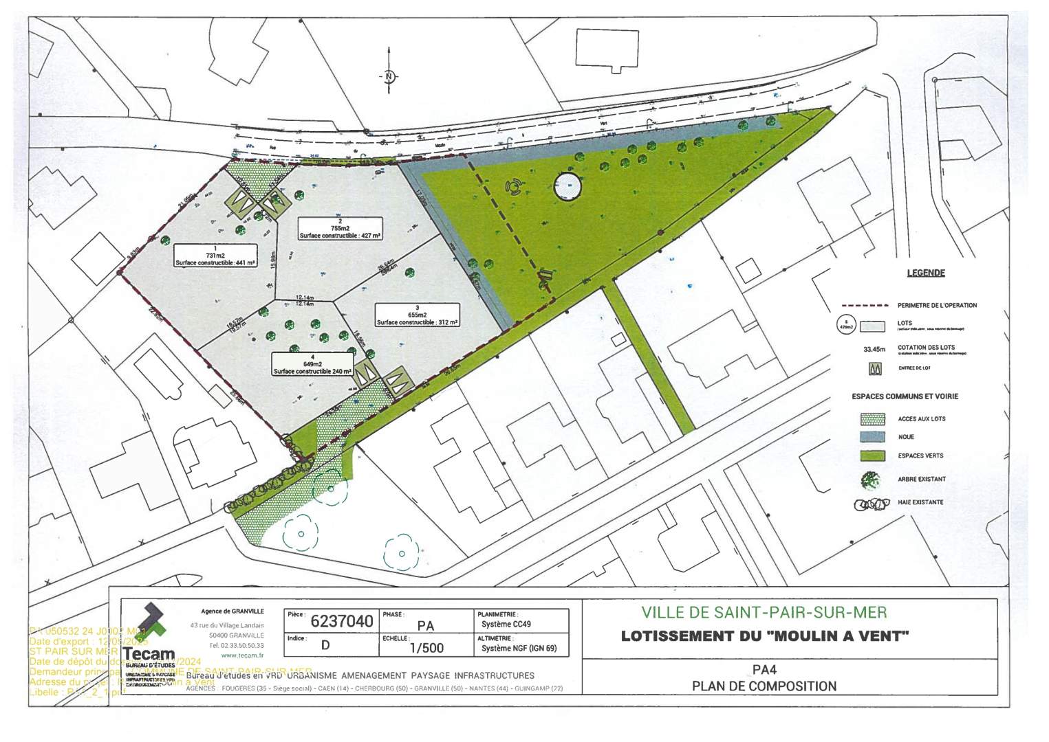
50380 SAINT PAIR SUR MER
En vente immo-interactif,
A 500m du coeur de ville, dans un bel environnement, terrain â bâtir (lot n°2) avec vue mer de 755m² dont 427m² de constructible viabilisé (eau, électricité, tout à l'égout, fibre).
Diverses contraintes architecturales dans le réglement notamment:
Surface plancher possible : 200m²
Construction dans la zone d'implantation obligatoire.
Hauteur : 6.5m au faitage et 3 m à l'égout.
Toiture 2 versants symétriques. Couverture en zinc, ardoises ou bois.
Cuve d'eau enterrée pour eaux pluviales
Certificat d'urbanisme du 6 novembre 2025.
Conditions de la vente : le bien est présenté en IMMO interactif à la hausse
1ère offre possible: 264.656€ honoraires de négociation et frais publicité inclus.
Minimum du pas des offres : 5.000€
Début des offres : Mardi 13 janvier 2026 à 14H00
Fin des offres : Mercredi 14 janvier 2026 à 14H00
sur le site immobilier.notaires.fr
Frais d'actes en sus
Les informations sur les risques auxquels ce bien est exposé sont disponibles sur le site Géorisques: www.georisques.gouv.fr